PLANTA DE TRANSFERENCIA DE RESIDUOS DE VIGO
- Industriales
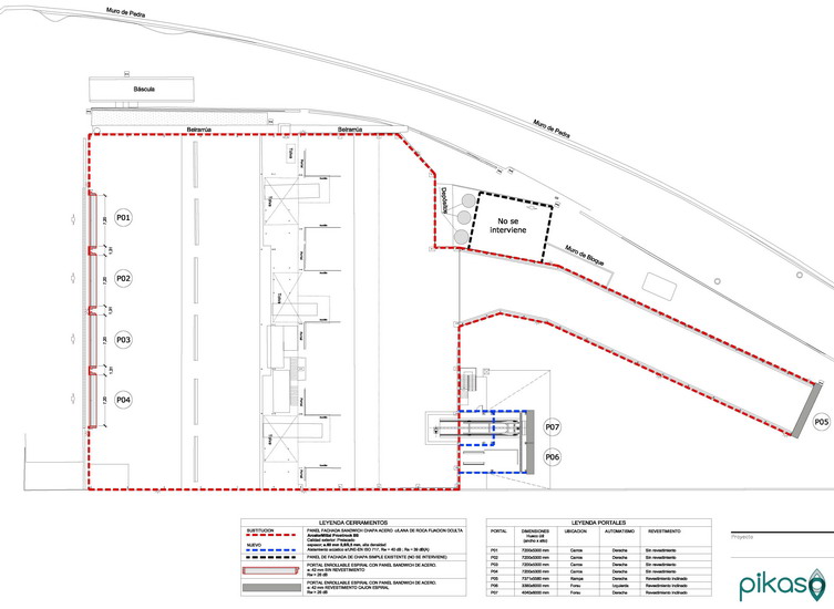
En este proyecto se realiza una remodelación de la Planta de Transferencia existente, procediendo a mejorar su protección frente al fuego, y se renueva la envolvente de la nave por otra con mejores características de atenuación acústica. Además, se implanta otro nuevo punto de transferencia de residuo de la familia de la Fracción Orgánica del Residuo Sólido Urbano (FORSU).

