CENTRO COMERCIAL ESTEPONA (MALAGA)

  • Locales comerciales

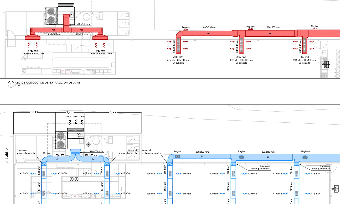
Proyecto en el que se desarrollan las instalaciones integrales de un Centro Comercial destinado a vivero y diversas actividades de restauración.

Locales comerciales
Locales comerciales