ELECTR. VERTEDERO DE RESIDUOS
- Industriales
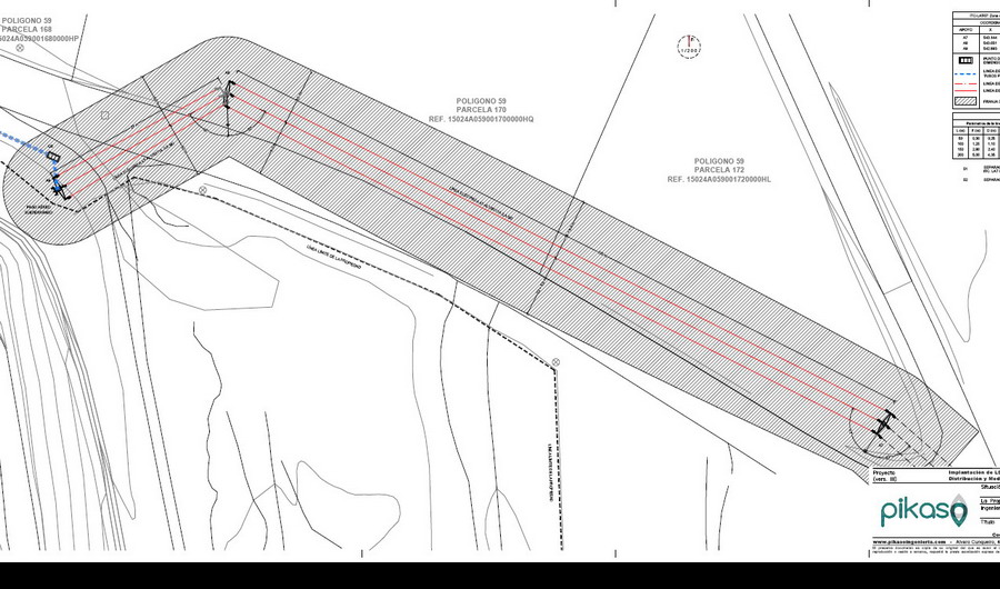
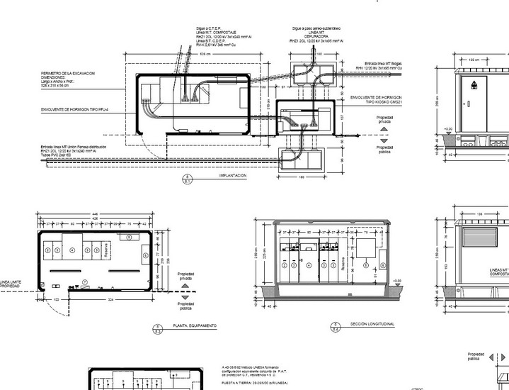
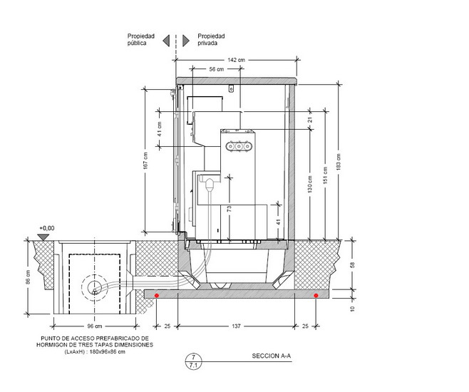
Proyecto de implantación de la instalación de suministro eléctrico en Alta Tensión en un Vertedero de Residuos. En el proyecto se estudia el trazado de la línea de Alta Tensión, sus servidumbres, y se plantean dos edificios destinados a Centro de Seccionamiento y Medida, en los que se sitúa la aparamenta eléctrica de Compañía y Cliente.

